Chez Jeannette & Antoine••

Rénovation complète d’un pied-à-terre dans le 9ème arrondissement de Paris

Jeannette & Antoine vivent en Guyane, mais viennent fréquemment en Europe pour leur travail.
Avec leur fille Stéphanie, ils ont choisi cet appartement parisien comme point d’ancrage : un lieu où se poser, travailler, retrouver un rythme plus doux entre deux vols.

Ils aiment les intérieurs très sobres : du blanc, du gris… beaucoup de blanc, beaucoup de gris.
De mon côté, je sais qu’un espace gagne en confort quand on ose un peu de couleur.
Et ils ont aussi un vrai faible pour l’or et le marbre.
Mon rôle a donc été de trouver l’équilibre parfait : introduire de la couleur sans les brusquer, garder le chic parisien qu’ils recherchaient, et intégrer l’or et le marbre avec parcimonie pour préserver l’élégance et la modernité du lieu.

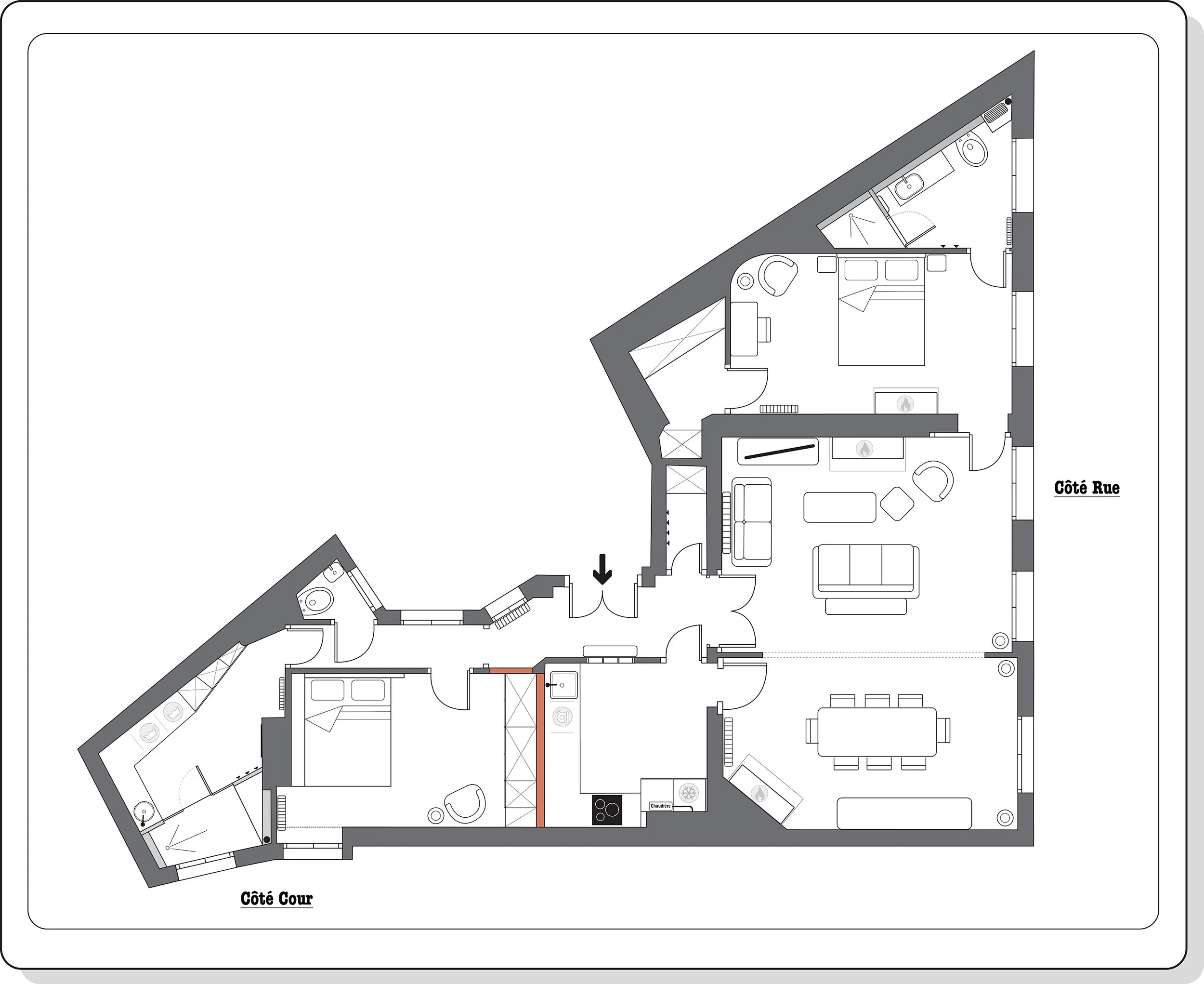
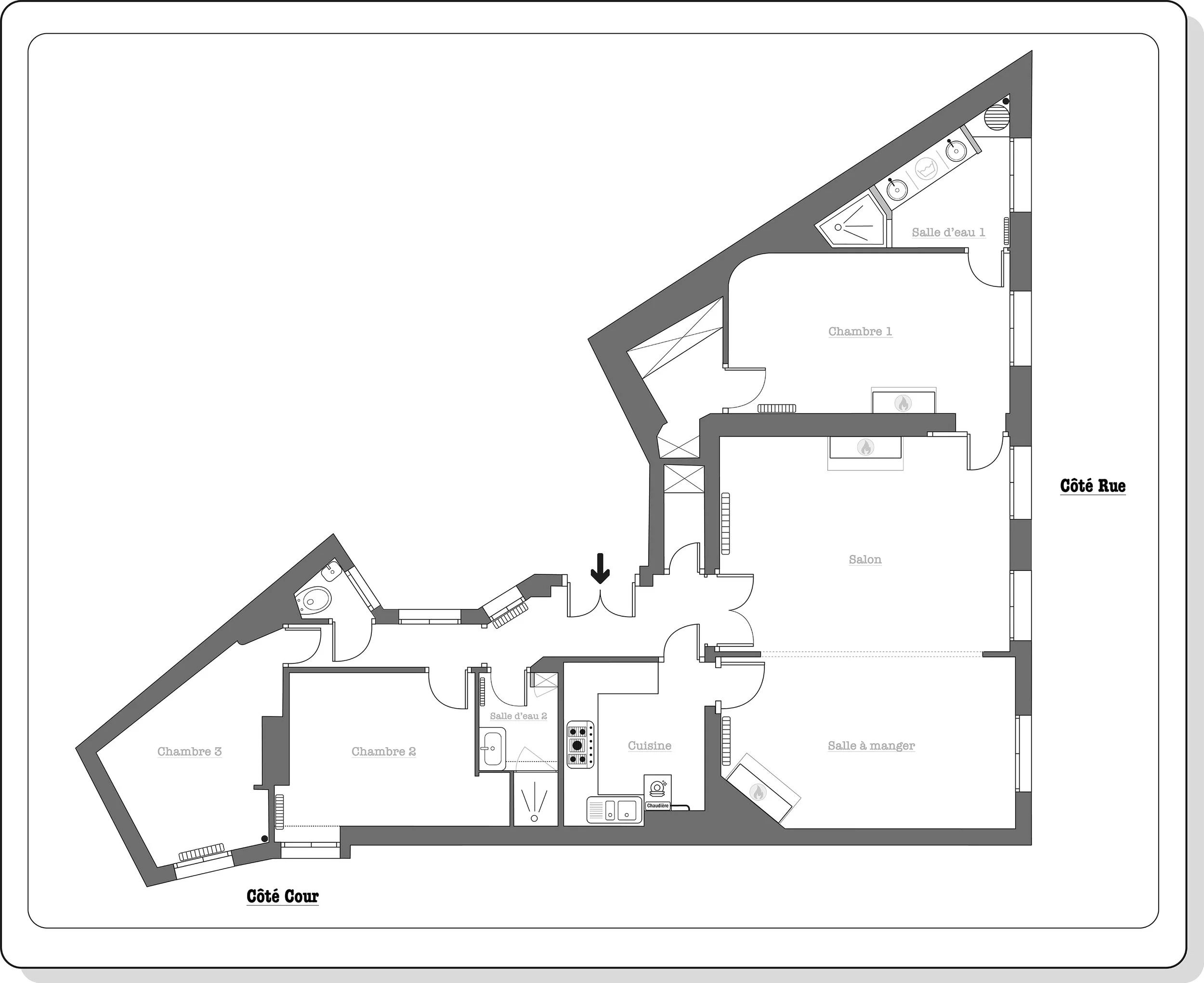
Objectif : Repenser entièrement l’appartement et en faire un cocon parisien élégant, fonctionnel et serein.
Un lieu pensé de A à Z, suivi de chantier compris, pour une famille qui voyage beaucoup mais aime rentrer “chez elle”.

Suivant
Suivant

Chez Marie-Inès ••